Booking an Our Commerical Air Conditioner

Our Services

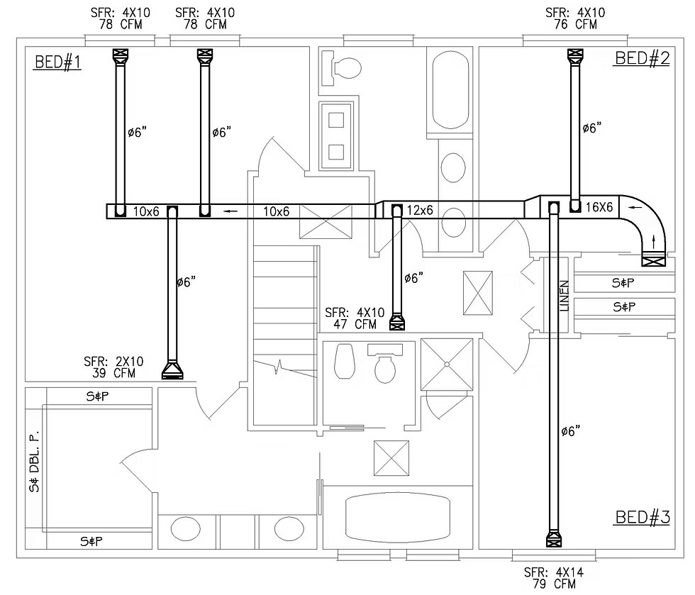
Ventilation System Design

Ventilation System Design & Execution

Well-designed ventilation ducting distributes fresh air through main ducts and branch ducts to different building areas, maintaining healthy indoor air quality and balanced airflow.

Applications :

  • ◈ Basement ventilation
  • ◈ Car parking ventilation
  • ◈ Industrial exhaust systems
  • ◈ Fresh air ventilation for offices

What We Do :

  • ◈ HVAC load calculation
  • ◈ GI / Pre-insulated duct design
  • ◈ Installation and testing
  • ◈ Air balancing & commissioning
HVAC Consultancy

HVAC Consultancy Services

Our HVAC consultancy services help clients design energy-efficient and cost-effective air conditioning systems for various building applications. We provide expert guidance from system planning to final implementation.

Services Included :

  • ◈ HVAC system design
  • ◈ Heat load calculations
  • ◈ Equipment selection
  • ◈ Energy efficiency analysis
  • ◈ Technical project guidance

Applications :

  • ◈ IT parks
  • ◈ Commercial buildings
  • ◈ Hospitals
  • ◈ Educational institutions
HVAC Fitout

HVAC Fit-Out for Commercial Spaces

We provide complete HVAC fit-out solutions for interior spaces including offices, ODCs, multi-storey buildings, and workstation environments. Our systems ensure comfort, efficient cooling, and consistent airflow.

Fit-Out Areas :

  • ◈ Office workstations
  • ◈ Offshore Development Centers (ODC)
  • ◈ Data centers
  • ◈ Conference rooms

Systems Installed :

  • ◈ Split AC systems
  • ◈ Cassette AC systems
  • ◈ Ductable AC systems
  • ◈ VRF / VRV systems
HVAC Fitout

Retrofit & Refurbishment of Existing AC Systems

We upgrade and refurbish existing HVAC systems to improve cooling performance and extend equipment life. Our retrofit solutions help modernize outdated systems without requiring a full replacement.

Services :

  • ◈ Old system inspection
  • ◈ Equipment replacement
  • ◈ Duct modification
  • ◈ Control system upgrade

Benefits :

  • ◈ Reduced energy consumption
  • ◈ Improved cooling efficiency
  • ◈ Lower maintenance cost
Energy Efficient HVAC Conversion

Energy Efficient HVAC Conversion

We convert conventional air conditioning systems into modern energy-efficient HVAC solutions using advanced technologies like VRF systems and smart automation to improve performance and reduce power consumption.

Upgrades

  • ◈ Conventional AC → VRF systems
  • ◈ Old chillers → energy-efficient chillers
  • ◈ Smart controls & automation

Benefits

  • ◈ Reduced electricity bills
  • ◈ Better cooling control
  • ◈ Long-term operational savings
HVAC Operation and Maintenance

Operation & Maintenance Services

We provide comprehensive operation and maintenance services for all types of HVAC systems to ensure smooth operation, improved energy efficiency, and long equipment life.

Systems Covered

  • ◈ Split AC systems
  • ◈ Cassette AC units
  • ◈ Ductable AC units
  • ◈ VRF / VRV systems
  • ◈ Chiller plants

Maintenance Services

  • ◈ Preventive maintenance
  • ◈ Breakdown service
  • ◈ Gas charging
  • ◈ Electrical and control inspection
  • ◈ Performance optimization